アーキテクトセブンでの業務実績 : : 2010 WORKS @ ARCHITECT 7













K大使館-PRJ
プロポーザルコンペ
用途:大使館
構造:地下2階・地上6階
構造:RC造
マスターアーキテクト:竹内巌/ハル・アーキテクツ
共同設計チームとして参加
大使館の新築提案プロポーザルコンペ.
全体3DModelingによるプレゼンテーション


都立大PRJ・外観StudyModeling, 構造StudyModeling, 実施図(平面詳細図)
用途:店舗, 集合住宅, 住宅
規模:550m2・地上7階
構造:RC造
設計:マツモトアンドアソシエイツ
竣工写真はコチラ






教会坂通り景観まちづくり・3Dウォークスルーシミュレーション
福島県白河市
マスタープラン:(株)計画工房
長期未着手都市計画道路の見直し・廃止により, 400年前から変わらない市街地構造(鉤型の街路形状)が残ることとなった当街路は教会坂通りと命名された. この教会坂通りに点在する歴史的・文化的資源, 景観特性を活かしながらどのようにまちづくりをしてゆくか, 整備状況をわかり易く確認するため, 事前の調査資料をもとに, 延長880mにおよぶ街路に面する既存建物等を3Dモデリングし, 街路の整備パターン, 色彩・素材のバリエーション, 電柱の移設などの比較検討をしながら. ウォークスルーシミュレーションを市民とのワークショップでプレゼンテーション.





青葉台-PRJ・プロポーザル
用途:集合住宅
規模:地下1階・地上2階
構造:RC造
マスターアーキテクト:竹内巌/ハル・アーキテクツ
共同設計チームとして参加
既存6戸の集合住宅を4戸にプラン変更. 大使館員の宿舎とするリノベーション.




HD邸・実施図書による詳細モデリング
用途:住宅
規模:497m2・地下1階・地上2階
構造:RC造
設計:(株)デミウルゴス一級建築士事務所
実施設計完了時にオーナーより設計図書一式を受取り, その内容をもとにSketchUpで詳細3Dモデリング. 諸室のパース表現・ウォークスルーによる空間把握と, 購入予定の家具の3Dデータ配置によるレイアウトシミュレーション, その他着工直前の意思決定ツールとして利用.



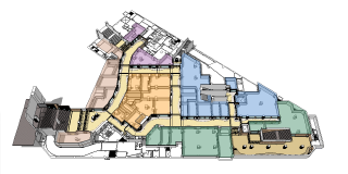
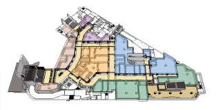
K. 病院改装提案-II
K. Hospital Renovation Proposal - II
用途:総合病院
構造:RC造
共同:マツモトアンドアソシエイツ
Usage : Hospital
Structure : RC
Corabolative Architects : Matsumoto and Associates
病院本館の内装のリニューアル提案.






広尾 F.邸キッチン改装
Hiroo F. Residence Kitchen Renewal
用途:Kitchen
Usage : Kitchen
SketchUp + LayOut
System Kitchen : SCHIFFINI MESA
SCHIFFINI ITALIA home page
SCHIFFINI TOKYO home page

江ノ島計画
Enoshima Project
依頼:(株)トータルメディア開発研究所
共同:VisionQuest
Client : Total Media Development Institute Co., Ltd.
Collaboration : VisionQuest
SketchUp +
Geospatial Information Authority of Japan/Basic map information




神奈川女性センター施設有効活用方策に関する事業化検討業務委託に関する公募型プロポーザル
Publicly solicited proposal regarding commissioning of commercialization study regarding effective utilization of Kanagawa Women's Center facilities.
一次審査通過・公開プレゼンテーション実施
用途:女性センター, ホール, 図書館, 宿泊施設等
規模:地上3階
構造:RC造
共同:文化科学研究所, VisionQuest
Passed the first screening and held a public presentation
Usage : Women's center, hall, library, accommodation facility, etc.
Floors : 3F
Structure : RC
Collaboration : Cultural Science Research Institute, VisionQuest
SketchUp + GoogleEarth



神宮前計画・プロポーザル
Jingumae Project Proposal
用途:店舗, 事務所
規模:地上3階
構造:S造
共同:マツモトアンドアソシエイツ
Usage : Shop, Office
Floors : 3F
Structure : S
Coraborative Architects : Matsumoto and Associates




K病院改装提案-I
K Hospital Renovation Proposal - I
用途:総合病院
構造:RC造
共同:マツモトアンドアソシエイツ
Usage : General Hospital
Structure : RC
Colaborative Architects : Matsumoto and Associates
新設病棟の増築に際し, 統一感を持たせるための外装のデザイン提案及び, 各病棟をつなぐキャノピーのデザイン提案.
When expanding a new ward, we proposed an exterior design to create a sense of unity and a canopy design that connects each ward.


常盤台計画・プロポーザル
Tokiwadai Project Proposal
用途:個人住宅
階数:地下1階・地上2階
構造:RC造
共同:マツモトアンドアソシエイツ
Usage : Private Residence
Floors : BF+2F
Structure : RC
Colaborativ Architeccts : Matsumoto and Associates
SketchUp + KeyShot













