アーキテクトセブンでの業務実績 : : 2013 WORKS @ ARCHITECT 7


TS4-PRJ
共同住宅ボリュームチェック
用途:共同住宅
規模:RC造・5階建・680m2
依頼:E-INTERIOR
共同住宅のボリュームチェック

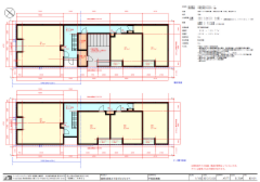
YY2-PRJ
共同住宅ボリュームチェック
用途:共同住宅
規模:RC造・4階建・420m2
依頼:E-INTERIOR
共同住宅のボリュームチェック


KIB2-PRJ
共同住宅ボリュームチェック
用途:共同住宅
規模:RC造・4階建・300m2
依頼:E-INTERIOR
共同住宅のボリュームチェック


SG2-PRJ
共同住宅ボリュームチェック
用途:共同住宅
規模:RC造・4階建・830m2
依頼:E-INTERIOR
共同住宅のボリュームチェック


NSC-PRJ
共同住宅ボリュームチェック
用途:共同住宅
規模:RC造・4階建・260m2
依頼:E-INTERIOR
共同住宅のボリュームチェック・5層とした場合の日影規制チェック

TN1-PRJ
共同住宅ボリュームチェック
用途:共同住宅
規模:RC造・4階建・500m2
依頼:E-INTERIOR
共同住宅のボリュームチェック






HIND-PRJ・SketchUp Modeling
用途:納骨堂
依頼:マツモトアンドアソシエイツ
納骨堂のプレゼンテーション資料作成にあたり、アイデアをリアルタイムで SketchUp により Modeling しながらデザイン検討。外観イメージパースの作成。


IBC-PRJ・隣地斜線制限の天空率による緩和Check
基本設計サポート
用途:事務所・住宅
依頼:城戸崎建築研究室
基本設計段階における, 隣地斜線制限の天空率による緩和のチェック. 関連条例, 法規チェック等, 基本設計のサポート.






STY-PRJ・天空率によるVolumeCheck PhaseII
確認申請提出資料作成
用途:専用住宅+集合住宅
依頼:F-design
敷地と前面道路に高低差があり、かつ、道路が屈曲して勾配がある場合の道路斜線制限の天空率による緩和のチェック。基本設計から実施設計の段階でプラン変更に伴う天空率の再チェック, 確定プランで確認申請提出資料の作成.


先進医療機器プロダクト・設置
インテリアレンダリングサポート
依頼:Oshima Product Design
Rhinoceros によるプロダクトおよびインテリアのモデリングデータの MaxwellRender によるレンダリング. ライティング設定, マテリアル設定, 環境設定等, イメージ作成のサポート.





FREG-PRJ・地形モデリング
3Dモデルから地盤面選定資料作成
用途:別荘
依頼:城戸崎建築研究室
地形の等高線データから地形のモデリング、計画建物の設計GL設定に係る高低差3m以内毎における地盤面算定






SNG-PRJ・Volume Check, SketchUp/LayOutによるプレゼンテーション資料作成
用途:店舗
依頼:竹内巖/ハル・アーキテクツ
SketchUp/LayOutによるプレゼンテーション資料の作成, GoogleEarthへの配置.






YBS-PRJ・天空率による Volume Check Phase II
確認申請提出資料作成
用途:集合住宅
依頼:(有)エフ・デザイン設計事務所
竣工写真はコチラ
実施設計段階から確認申請に至る実施設計過程における道路斜線制限の天空率による緩和チェック. 確認申請提出資料作成のサポート.












