アーキテクトセブンでの業務実績 : : 2015 WORKS @ ARCHITECT 7






HGR-PRJ 天空率・確認申請
用途:戸建住宅
依頼: アトリエ・ノブリル
坂道に面する敷地における道路斜線の天空率による緩和チェック。天空率をクリアできる屋根形状のスタディ、北側斜線のチェック。確認申請資料の作成。
3DBASECAMP 2015 in Japan/Tokyo
2015/12/04
講演:LayOut 実践
依頼: Alphacox
SketchUp + LayOut による建築設計の実践例の紹介
SketchUp による 3D model から LayOut で基本設計図書、実施設計図書を作成するための、情報モデリング手法、グループとレイヤによる表示・非表示のコントロールからシーン登録、全体モデルから取り出したモデルによる展開図等の作成例、ダイナミックコンポーネントによる一点鎖線の利用例などの紹介

SG3-PRJ Volume Check
用途:ワンルームマンション
依頼:RC HAUS
4階建で高さ10mを超えないワンルームマンションのボリュームチェック, 道路斜線制限の天空率による緩和チェックにより最小セットバック距離の検討, 検討結果をふまえた各階基本ボリュームモデルから一般図を LayOut により作成
GTJ-PRJ Volume Check
用途:ワンルームマンション
依頼:
4階建で高さ10mを超えないワンルームマンションのボリュームチェック, 道路斜線制限の天空率による緩和で3階までのボリュームのセットバック距離を少なくした場合に4階でどこまでボリュームを確保できるか?そのバランスの検討.
Lumion Forum 2015 春
2015/4/22:大阪 2015/4/24:東京
講演:Google Earth / 地理院地図・航空写真画像と Lumion の連携
依頼: LivingCG : http://lumion3d.jp/
SketchUp に取り込んだ Google Earth の地形データの他に、「基盤地図情報」によるベクトルデータや「地理院地図」による航空写真画像その他の地図画像、さらには「地理院地図3D」の3D地形データなど、SketchUp で可能な具体的なモデリング方法と留意点、Lumion への取込み事例を紹介

NEDO-PRJ 2
SketchUp + LayOut による基本設計業務
用途:野菜市場・レストラン
依頼:INTENTIONALLIES
2棟の建物のプランニング・外観デザイン, SketchUp によるモデリング, SketchUp + LayOut による3D model と連動した基本設計図書の作成, BIM 的手法の設計スタッフへのレクチャ






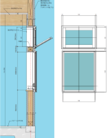
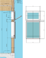
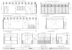
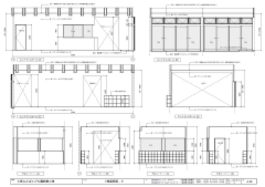
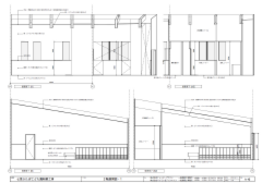
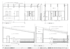
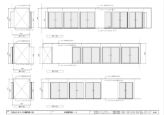
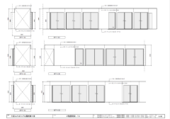
NFC-PRJ Phase-II
用途:こども園
依頼:マツモトアンドアソシエイツ
+(株)ナレッジ・デザイン一級建築士事務所
実施設計のサポート、構造3Dモデルと意匠3Dモデルによる干渉チェック、デザイン決定のための3Dディティールモデルによる打ち合わせ
SketchUp の3Dモデリングデータから LayOut により、3Dと連動した実施設計図面(平面詳細図・天井伏図・展開図・部分詳細図等)の作成
竣工写真はコチラ




GSS-PRJ SketchUp Modeling, プレゼンテーション資料作成 Phase II
用途:リゾートホテル・レジデンス・レストラン
依頼:マツモトアンドアソシエイツ
+(株)ナレッジ・デザイン一級建築士事務所
リゾート施設のプロポーザルコンペ. プログラムの変更によるデザインテイストおよびボリュームの再検討. 配置する全ての施設の SketchUp による 3D modeling 再構成, Lumion による Visualization イメージパースの作成



NFC-PRJ Phase-I
用途:こども園
依頼:マツモトアンドアソシエイツ
+(株)ナレッジ・デザイン一級建築士事務所
こども園、実施設計初期段階の3Dmodeling, シーン設定アニメーション, 計画内容のリアルタイム・ビジュアル・プレゼンテーション
竣工写真はコチラ



KCC-PRJ
用途:児童センター・プラネタリウム
依頼:(株)都市計画21
ラフスケッチプランからの直接 3D モデリング, SketchUp + LayOut による Drawing / Pers, プレゼンテーション資料の作成



























