アーキテクトセブンでの業務実績 : : 2019 WORKS @ ARCHITECT 7


NZP
用途:事務所併用住宅
共同設計:堀越英嗣アーキテクトファイブ
SketchUp+LayOutによるBIM的活用の実践
基本設計・実施設計・確認申請・天空率チェック






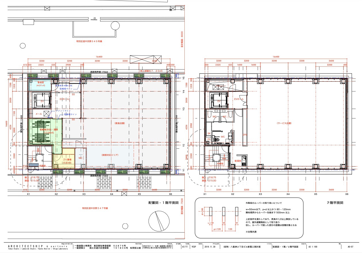
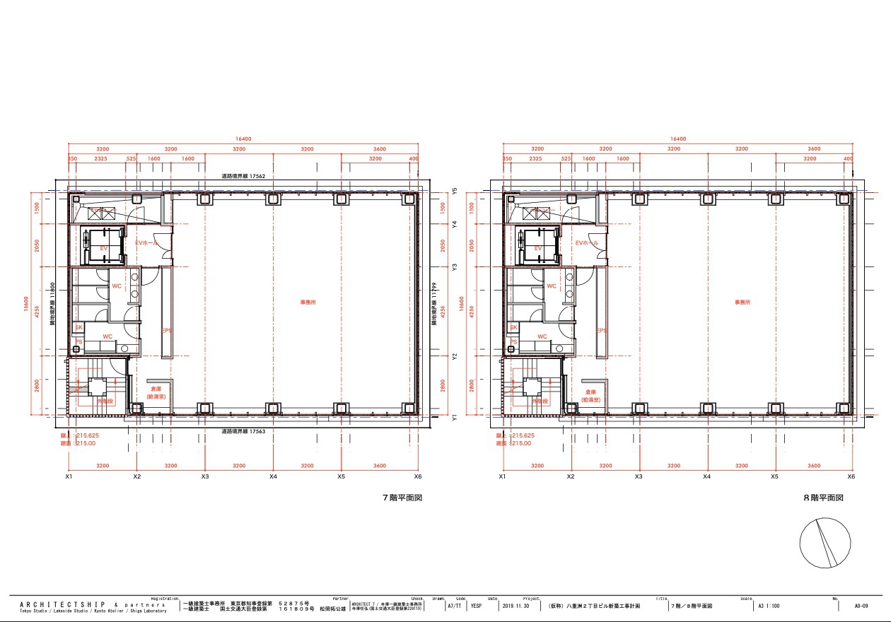
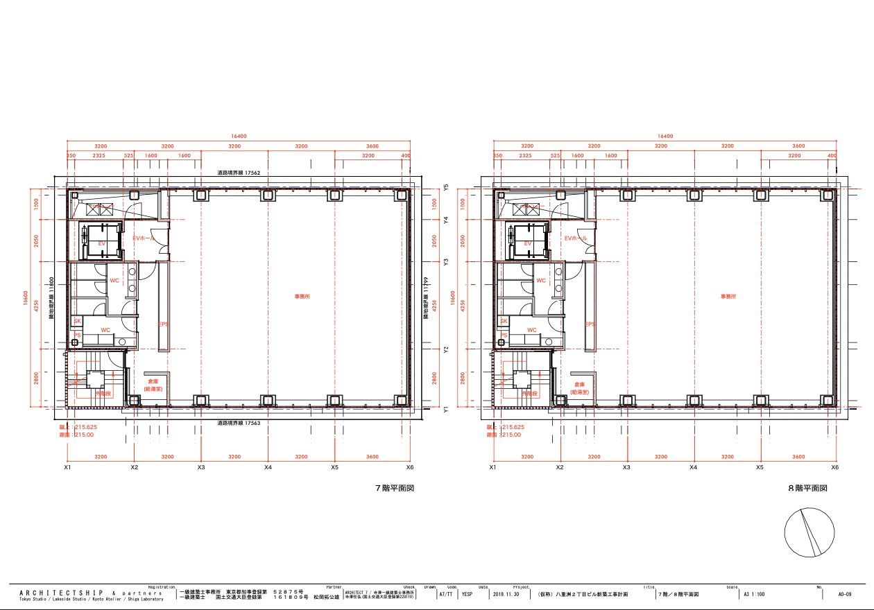
YESP
用途: 複合オフィスビル
共同設計:合同会社アーキテクトシップ
SketchUp+LayOutによるBIM的活用の実践
基本設計・実施設計・確認申請



GZ1P
用途:商業複合オフィスビル
SketchUp+LayOutによるBIM的活用の実践
既存建物解体時における3Dモデルによる検証
近隣説明資料の作成
新築建物のボリュームスタディ・基本計画


NBP
用途: 住宅
依頼:F-design設計事務所
SketchUp による道路車線制限の天空率チェック



NBD
用途: オフィスビル
依頼:スズキマコトアトリエ
SketchUp による道路車線制限の天空率チェック



Lumion コンペ 2019
敷地・周辺コンテクストモデリング
依頼: LivingCG
コンペ対象敷地(エストニア・パタレイ)を含む地形および周辺コンテクストの SketchUp によるモデリング. SketchUp のジオロケーションモデルに GoogleEarth の映像, Placemaker の建物ボリュームを合成, 道路ラインはトレース, 計画エリア周辺は CAD データを取込み, 総合的にモデリングしたサイトに、支給された建物データのポリゴン数をある程度レデュースして配置.
万代広場上空東西連絡通路基本設計修正業務
用途:ペデストリアンデッキ・広場・交通広場
依頼:新潟駅周辺施設計画堀越共同体
(堀越英嗣ARCHITECT5・アプル総合計画事務所・
パシフィックコンサルタンツ・鳳コンサルタント)
SketchUpモデリング・パース作成












