アーキテクトセブンでの業務実績 : : 2022 WORKS @ ARCHITECT 7






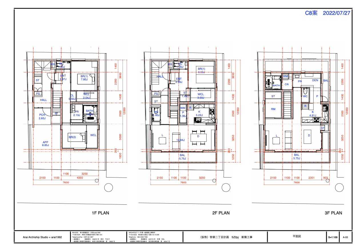
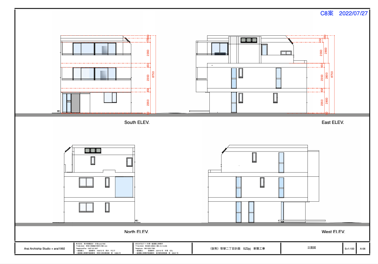
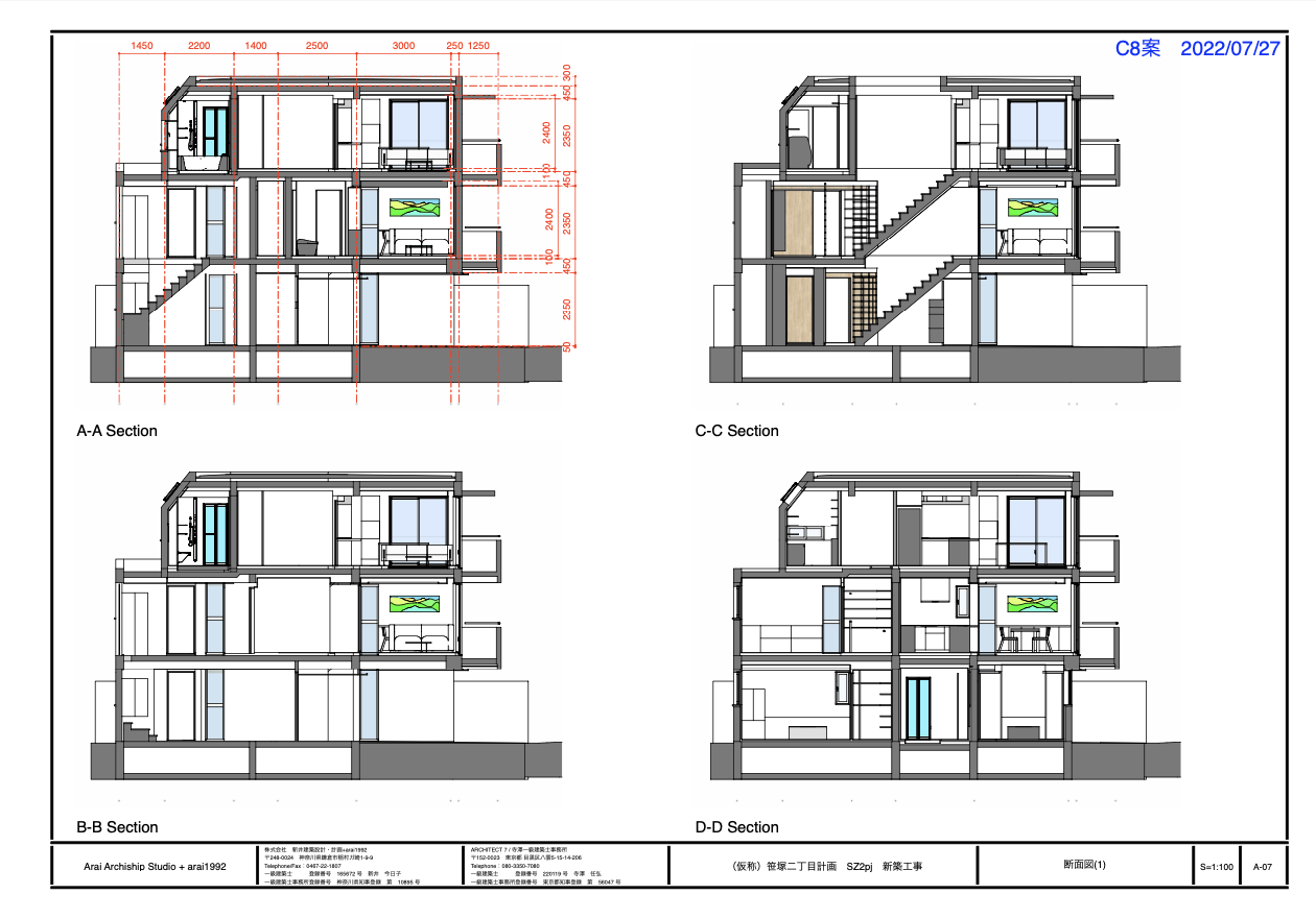
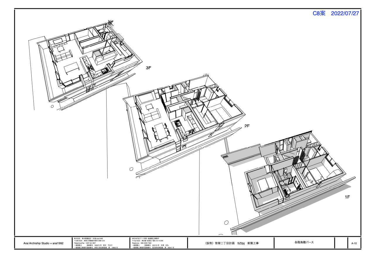
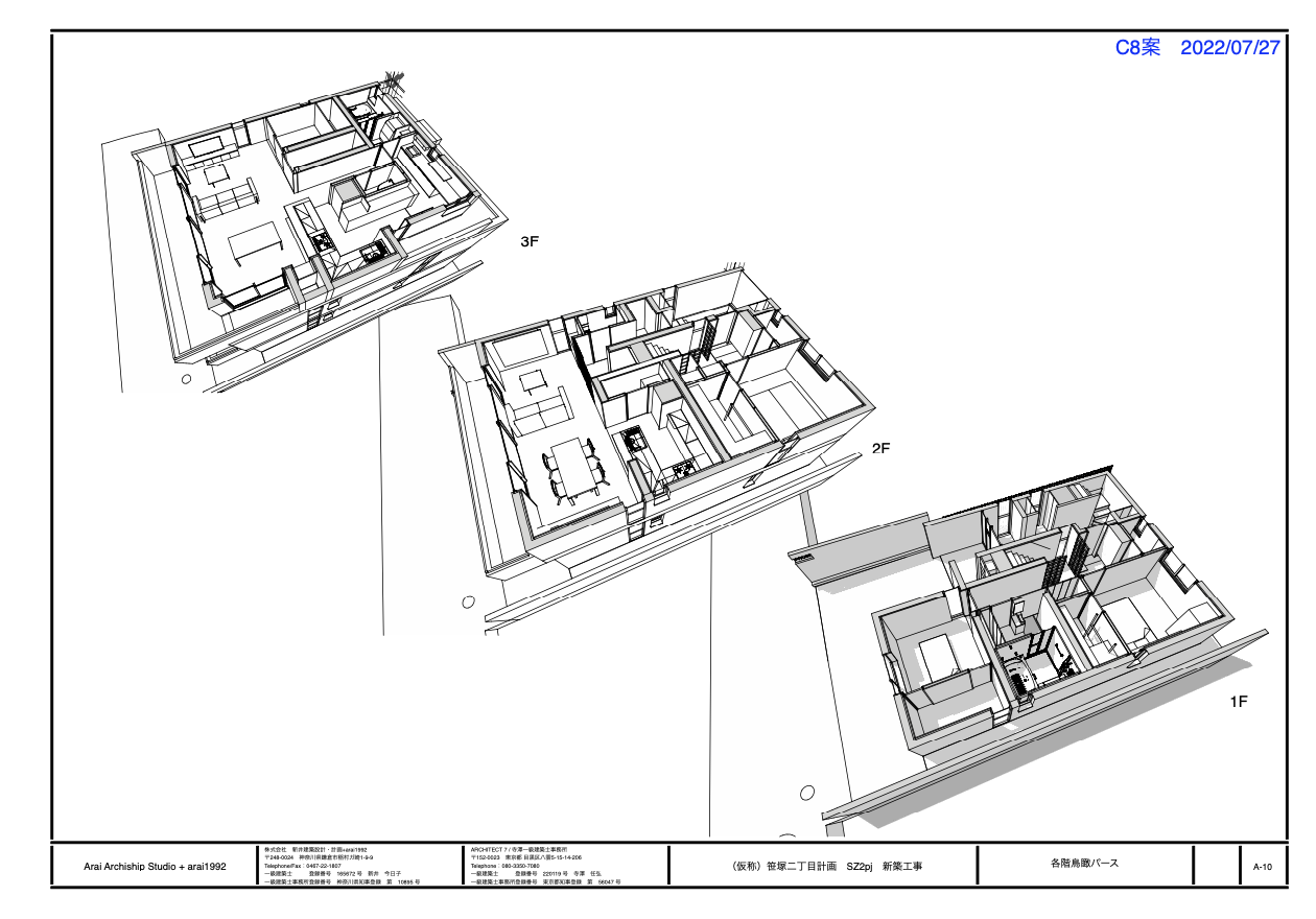
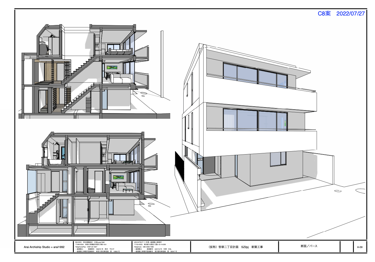
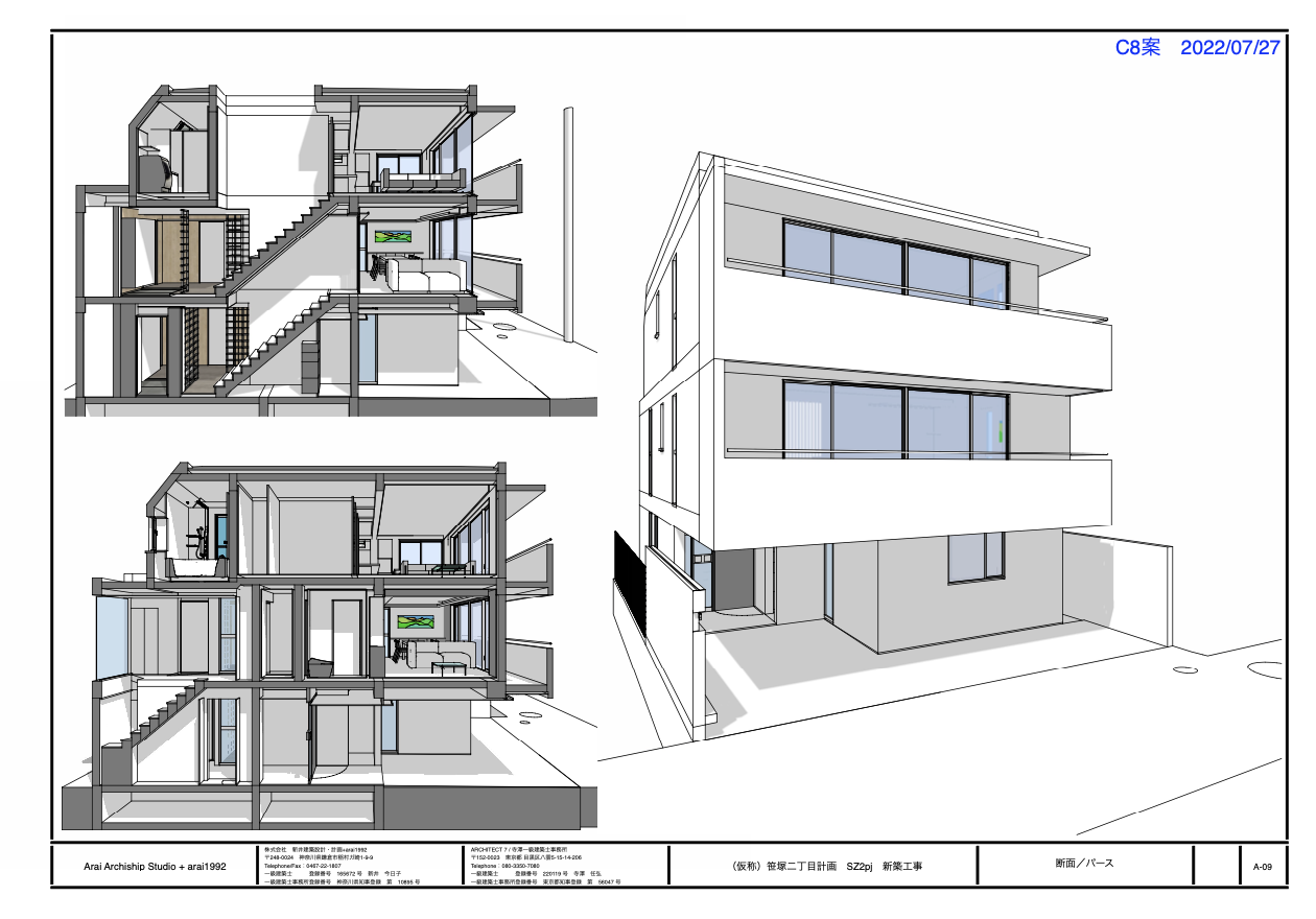
SZ2
用途:共同住宅
共同設計:新井建築設計・計画+arai1992
SketchUp+LayOutによるBIM的活用の実践
基本設計・実施設計
Usage : Apartment housing
Collaborate Architect : Arai Architects & Planning +arai1992
Practice of BIM-like utilization using SketchUp+LayOut
Basic design to implementation design






IGSP
用途:共同住宅
共同設計:新井建築設計・計画+arai1992
SketchUp+LayOutによるBIM的活用の実践
基本構想
Usage : Apartment housing
Collaborate Architect : Arai Architects & Planning +arai1992
Practice of BIM-like utilization using SketchUp+LayOut
Concept design


SIK
用途:中学校・高校
設計:堀越英嗣ARCHITECT 5
校舎改築計画における既存校舎のSketchUpによるモデリングサポート
Use: Junior high school/high school
Design: Hidetsugu Horikoshi ARCHITECT 5
Modeling support for existing school buildings using SketchUp for school building renovation planning


AMKP
用途:戸建住宅
共同設計:堀越英嗣アーキテクトファイブ
SketchUp+LayOut によるBIM的活用の実践
実施設計・構造モデリング
Usage: Detached house (Villa)
Colabolate Architects : Hidetoshi Horikoshi Architect Five
Practice of BIM-like utilization using SketchUp+LayOut
final design, structural modeling




MOE-BAS
用途: 野球場
協同設計:アーキテクトファイブ・ナカオアトリエ
モエレ沼講演硬式野球場スタンド新築ほか工事実施設計業務
SketchUp+LayOut によるBIM的活用の実践
情報付加3Dモデルから展開図作成等
Use: Baseball field
Collaborate Architects : Architect Five, Nakao Atelier
Moerenuma Park New construction of baseball field stands and other construction implementation design services
Practice of BIM-like utilization using SketchUp+LayOut
Creation of developed diagrams from information-added 3D models, etc.






MOE-BAS
用途: 野球場
協同設計:アーキテクトファイブ・ナカオアトリエ
モエレ沼講演硬式野球場スタンド新築ほか工事基本設計業務
基本設計における野球場および周辺敷地の SketchUp によるモデリング, Twinmotion によるプレゼンテーション
Use: Baseball field
Collaborate Architects : Architect Five, Nakao Atelier
Moerenuma Park New construction of baseball field stands and other construction implementation design
Basic design of the baseball field and surrounding area, modeled in SketchUp, and presented in Twinmotion













