アーキテクトセブンでの業務実績 : : 2018 WORKS @ ARCHITECT 7

OZR
用途:住宅
依頼: F-design設計事務所
SketchUp による道路車線制限の天空率ボリュームチェック



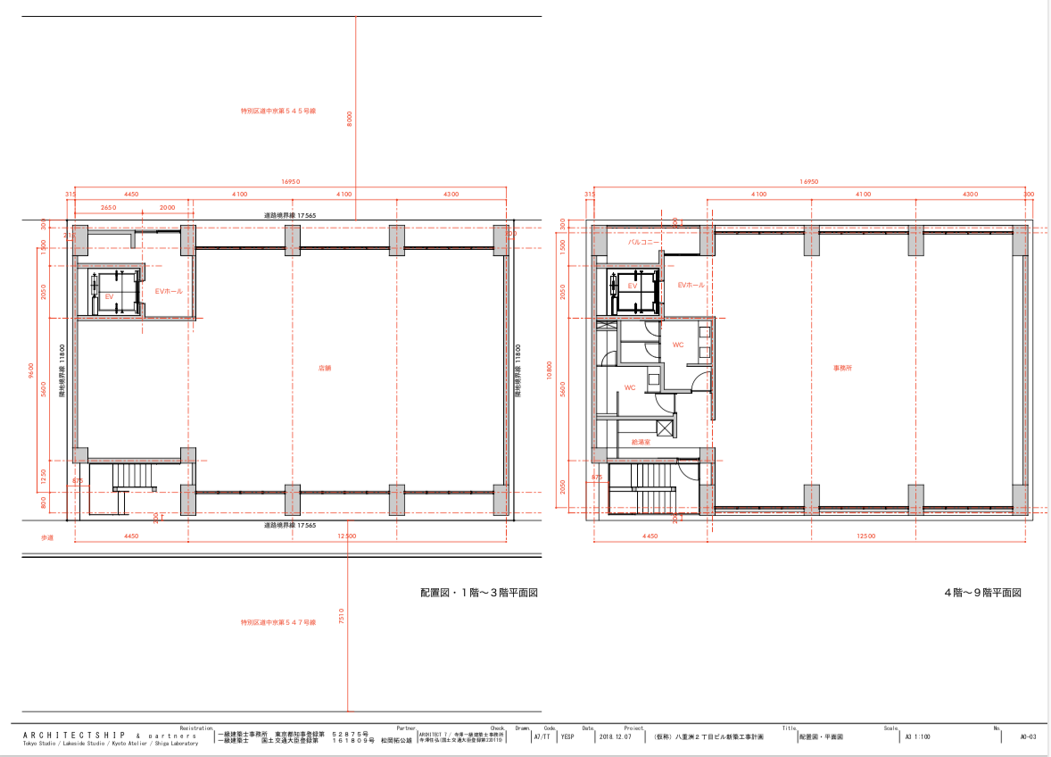
YESP
用途:複合オフィスビル
依頼: アーキテクトシップ
SketchUp によるボリュームスタディ



KJP
用途:オフィス
依頼: 堀越英嗣アーキテクトファイブ
SketchUp による天空率チェック・ボリュームスタディ



![]()
SketchUp Plugin
Profile Builde 3 の日本語化
依頼: mindsight studio
Profile を自由に定義してクリックしながらモデリングするなど多機能な SketchUp 専用プラグインの最新バージョンのダイアログ等の日本語訳を担当.
ProfileBuilder3 for SketchUp

![]()
SketchUp Plugin
Quantifier Pro の日本語化
依頼: mindsight studio
ProfileBuilder2 の Quantifier Tool (集計ツール) が機能強化・独立して新たにリリースされた SketchUp 専用プラグインのダイアログ等の日本語訳を担当.
Quantifier Pro for SketchUp

KSW-PRJ
用途:オフィス
依頼: 熊谷組(仲介:LivingCG)
SketchUp による新築オフィスの意匠確認及びプレゼンテーション用 modeling, LUMION への取込, ノードリプレースメント手法による樹木・照明等配置方法のレクチャ






CHMR-PRJ
用途:住宅
協働:マツモトアンドアソシエイツ
住宅の基本設計, SketchUp によるリアルタイムモデリング, SKP モデルから LayOut によるプレゼンテーション資料・図面作成(配置図・各階平面図・立面図・断面図・パース)
Lumion Forum 2018
2018/04/27:東京
講演:SketchUp の BIM 的活用法
依頼: LivingCG
SketchUp + LayOut による実践例の紹介, 基本設計(敷地作成, ボリュームスタディ, 配置検討, 基本設計モデリング, 一般図作成, Lumion によるレンダリング, プレゼンテーションドキュメント作成)・実施設計(詳細モデリングから平面詳細図・展開図・建具表等 LayOut による図面作成)



JDR-PRJ
用途:住宅
依頼:F-design
SketchUp による道路斜線・北側斜線ボリュームチェック, 基本設計モデリング, KeyShot によるプレゼンテーション用レンダリング, LayOut によるドキュメント作成, SketchUp データ納品, modeling 手法のレクチャ
新潟駅舎駅前広場整備
万代広場中央広場計画等検討業務・万代広場上空東西連絡通路基本設計業務
用途:ペデストリアンデッキ・広場・交通広場
依頼:新潟駅周辺施設計画堀越共同体
(堀越英嗣ARCHITECT5・アプル総合計画事務所・
パシフィックコンサルタンツ・鳳コンサルタント)





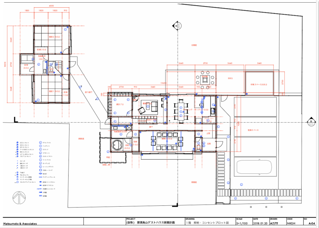
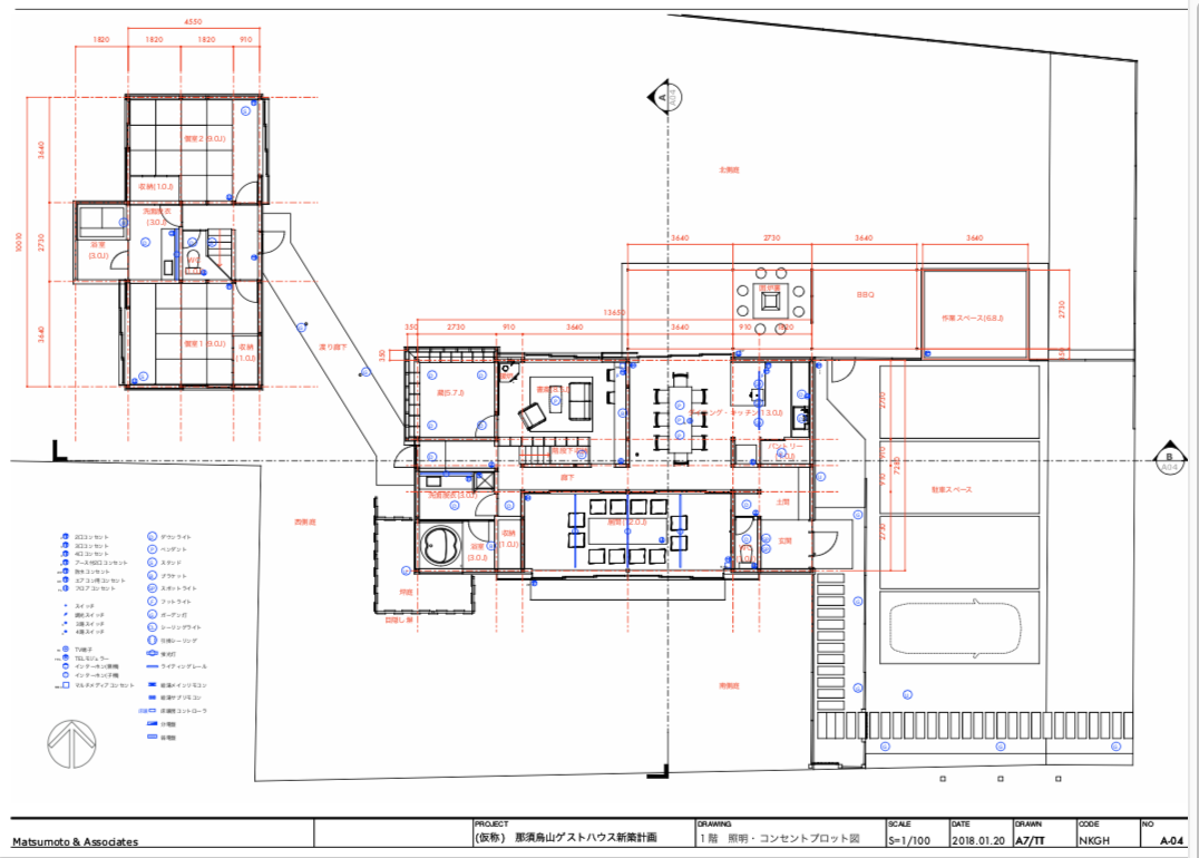
NKGH-PRJ Phase2
用途:住宅(ゲストハウス)
協働:マツモトアンドアソシエイツ
SketchUp model の実施設計対応による変更, LayOut でコンセント・照明等プロット図作成, 実施設計のベースとなる一般図・各室断面展開図等の DWG/DXF 出力


OF-PRJ
用途:オフィス・インテリア
設計:
依頼:Alphacox
SketchUp による意匠・詳細 modeling 協力






BBR-PRJ Pahse2
用途:住宅
協働:マツモトアンドアソシエイツ
内装リニューアルデザイン提案, SketchUp によりリアルタイムモデリング・デザイン検討, プランニング, モデル作成, プレゼンテーション資料作成
















