アーキテクトセブンでの業務実績 : : 2021 WORKS @ ARCHITECT 7


NZP
用途:事務所併用住宅
共同設計:堀越英嗣アーキテクトファイブ
SketchUp+LayOutによるBIM的活用の実践
現場監理
Use: Residential and office space
Collaborative-design: Horikoshi Hidetsugu Architect 5
BIM-like use of SketchUp+LayOut
Site supervision








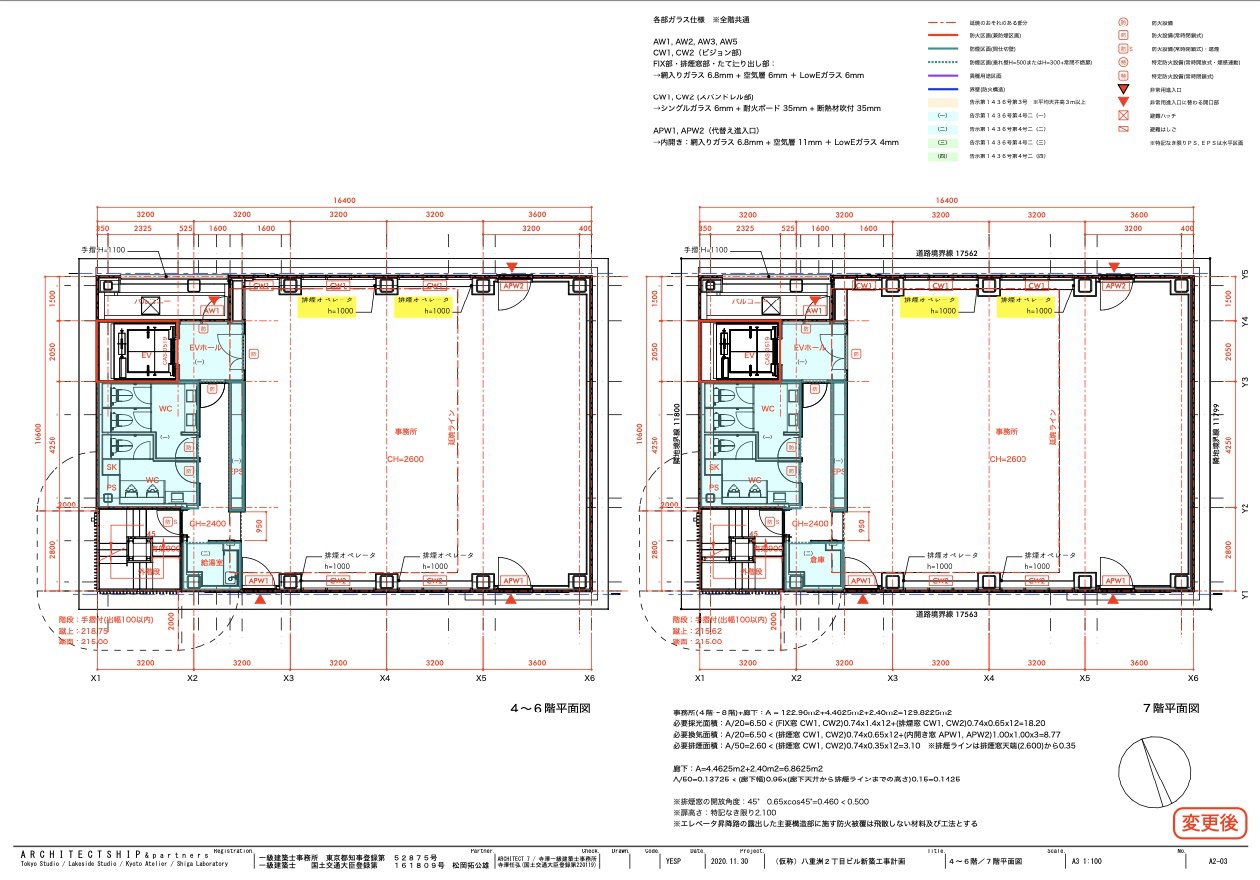
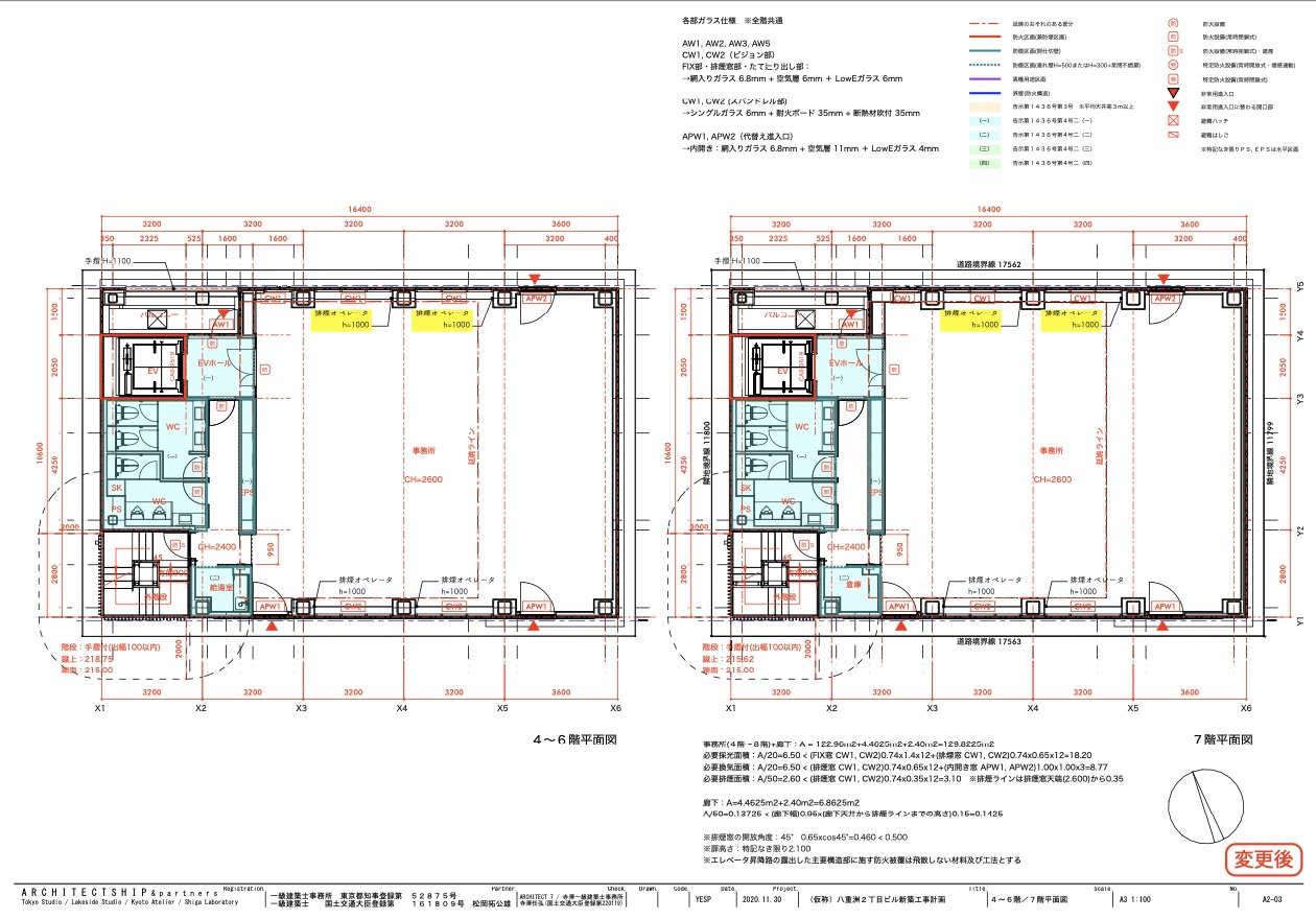
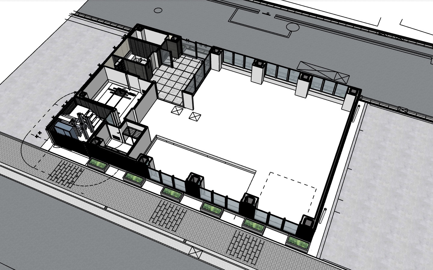
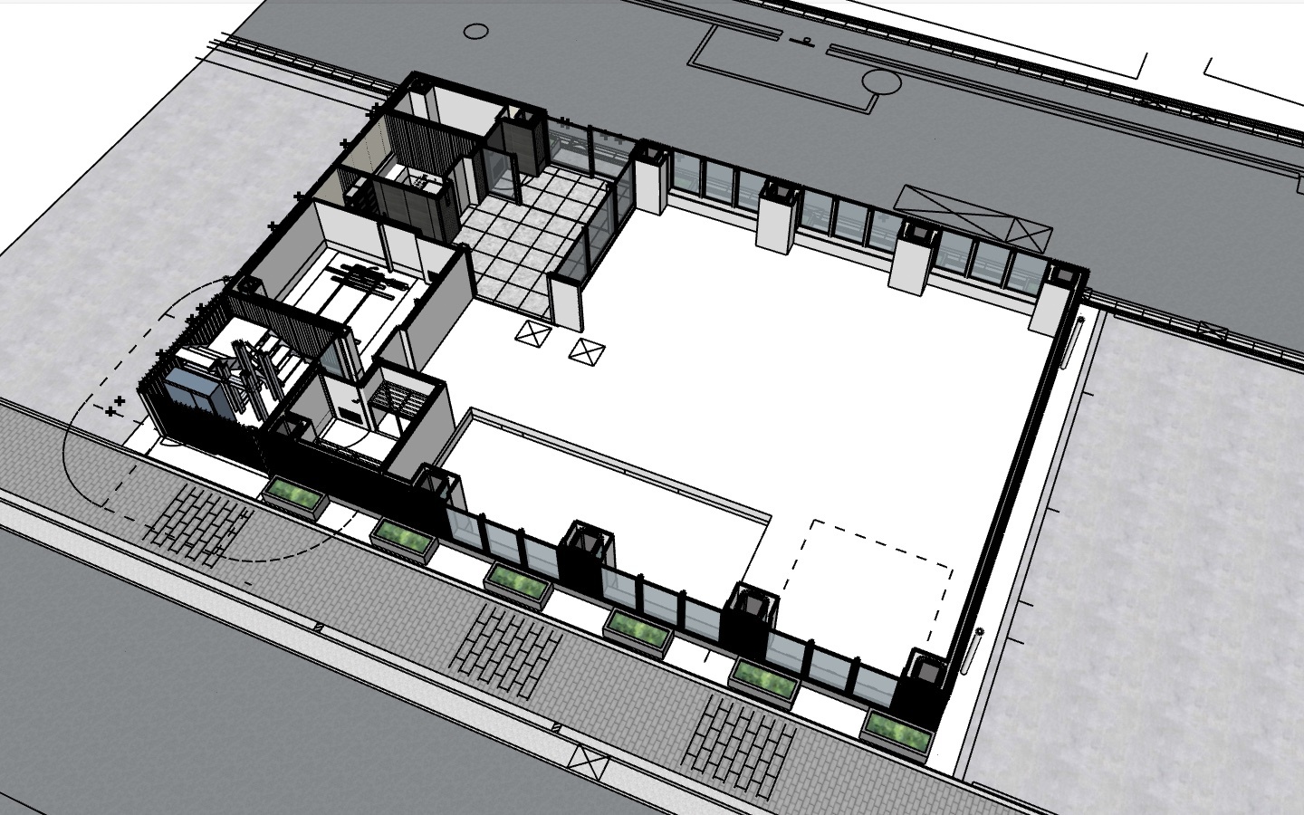
YESP
用途: 複合オフィスビル
共働設計:アーキテクトシップ
SketchUp+LayOut によるBIM的活用の実践, 全ての設計図書(意匠図)を 情報付加したSketchUp モデルを LayOut 取り込み作成
実施設計・条例に基づく認定申請・確認申請・現場監理
Use: Complex office building
Collaborative design: Architectship
Practice of BIM-like use with SketchUp+LayOut
SketchUp model with added information for all design documents (architectural drawings) is imported and created in LayOut
Detailed design, application for certification based on ordinances, application for confirmation, on-site supervision






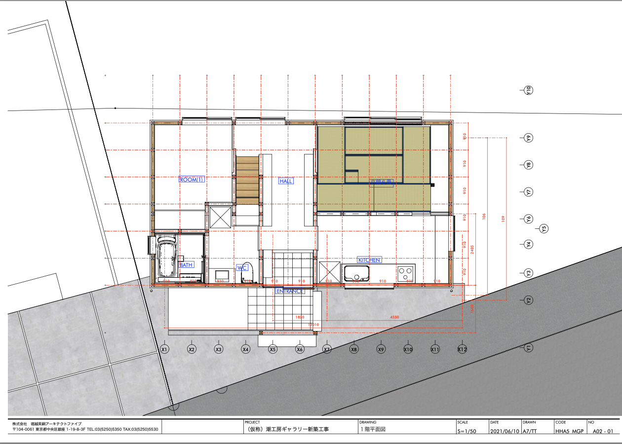
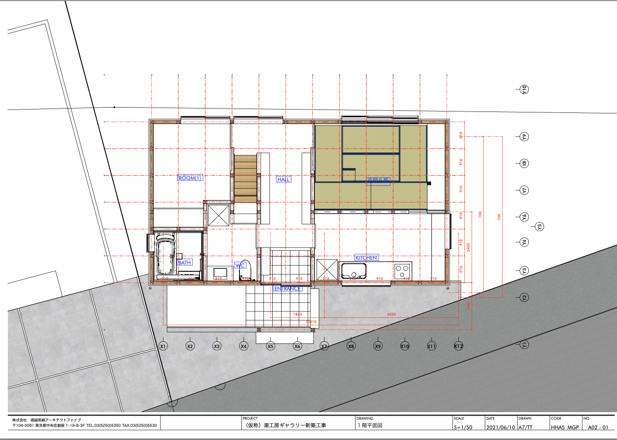
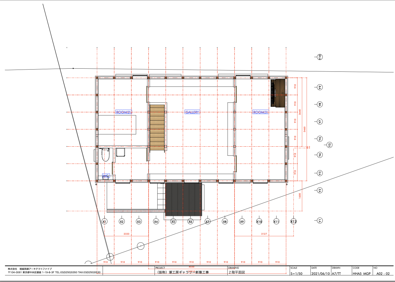
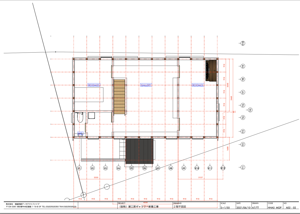
UGP
用途:ギャラリー+戸建住宅
共同設計:堀越英嗣アーキテクトファイブ
SketchUp+LayOut によるBIM的活用の実践
敷地コンテクストmodeling, 配置検討
基本設計modeling, LayOutによる図面作成




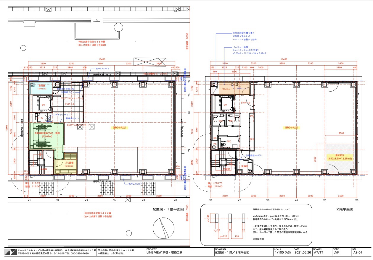
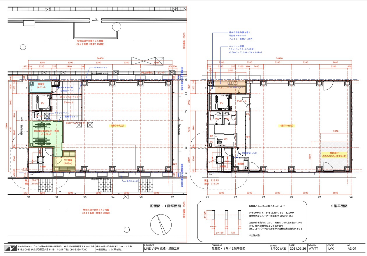
YESP 増築工事
用途: 複合オフィスビル
SketchUp+LayOut によるBIM的活用の実践
竣工後のテナント入居対応
吹き抜け部分の床の増築に係る申請手続き・現場管理等
Use: Office complex
Practice of BIM-like use with SketchUp+LayOut
Handling tenant occupancy after completion
Application procedures and site management for expanding the floor of the atrium area





AMKP
用途:戸建住宅
共同設計:堀越英嗣アーキテクトファイブ
SketchUp+LayOut によるBIM的活用の実践
敷地コンテクストmodeling, 配置検討
木造軸組model+意匠室内modelによる設計図書の作成






SZ2
用途:共同住宅
共同設計:新井建築設計・計画+arai1992
SketchUp+LayOutによるBIM的活用の実践
プランバリエーションの提案〜基本設計
Usage : Apartment housing
Collaborate Architect : Arai Architects & Planning +arai1992
Practice of BIM-like utilization using SketchUp+LayOut
Proposal of plan variation ~ Basic design













