アーキテクトセブンでの業務実績 : : 2017 WORKS @ ARCHITECT 7



IDB-PRJ
用途:共同住宅
依頼:横浜設計
ArchiCAD で作成した 3D model を SketchUp に取り込み, ジオロケーション情報を設定して KMZ ファイルをエクスポート, GoogleEarth で周辺環境との関係確認, 室内からの眺望のシミュレーションのための KML ファイルの書き換え等サポート


SY-PRJ
用途:共同住宅+文化施設
設計:RIA
依頼:Alphacox
外観意匠確認のための SketchUp による詳細 modeling 協力






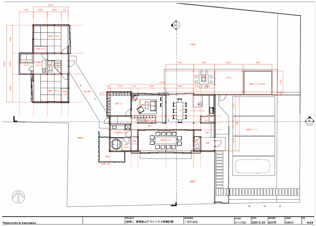
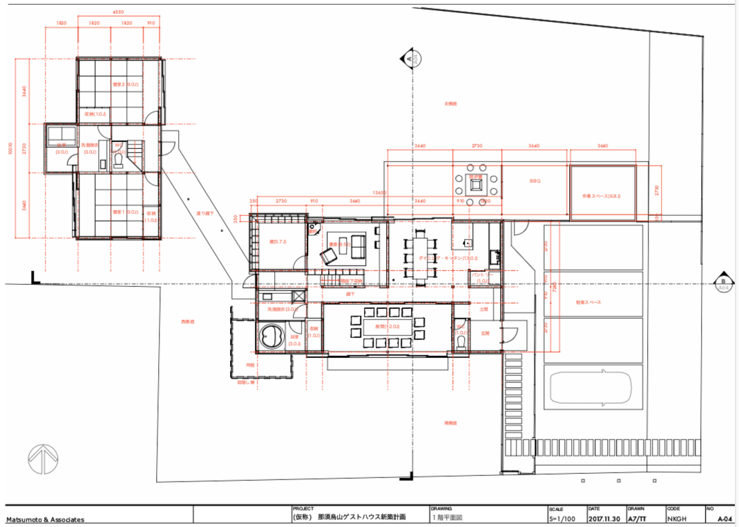
NKGH-PRJ
用途:住宅(ゲストハウス)
協働:マツモトアンドアソシエイツ
SketchUp による基本設計 modeling, Lumion による rendering, LayOut による presentation ドキュメント作成
設計者選定のためのオーナー打ち合わせにおける3Dモデルによるリアルタイムプレゼンテーションサポート
基本設計一般図の DWG/DXF 出力


「木曽町役場本庁舎・防災センター建設」に伴う基本設計業務委託に係る公募型プロポーザル
用途:町役場・防災センター
協働:堀越英嗣アーキテクトファイブ
SketchUp によるmodeling, Lumion によるレンダリング



BBR-PRJ
用途:住宅
協働:マツモトアンドアソシエイツ
外装リニューアルデザイン提案。SketchUp によりデザイン検討、プランニング、モデル作成、LayOut によりプレゼンテーション資料作成。



Lumion コンペ公開審査会 LIVE
2017/09/08:東京
講演:ランドスケープをLumionで読み込む
依頼: LivingCG
SketchUp によるランドスケープモデリング手法
OpenStreetMap (Placemaker, CADMAPPER)
国土地理院基盤地図情報(地理院地図からSTL, コンターラインから, 5m10mメッシュから)






KFT-PRJ
用途:幼稚園
依頼:マツモトアンドアソシエイツ
+(株)ナレッジ・デザイン一級建築士事務所
プールのある幼稚園の増築提案。SketchUp モデリングによる外観デザインスタディ、LauOut によるプレゼンテーション資料作成。モデルデータを GoogleEarth に配置して既存建物との合成。






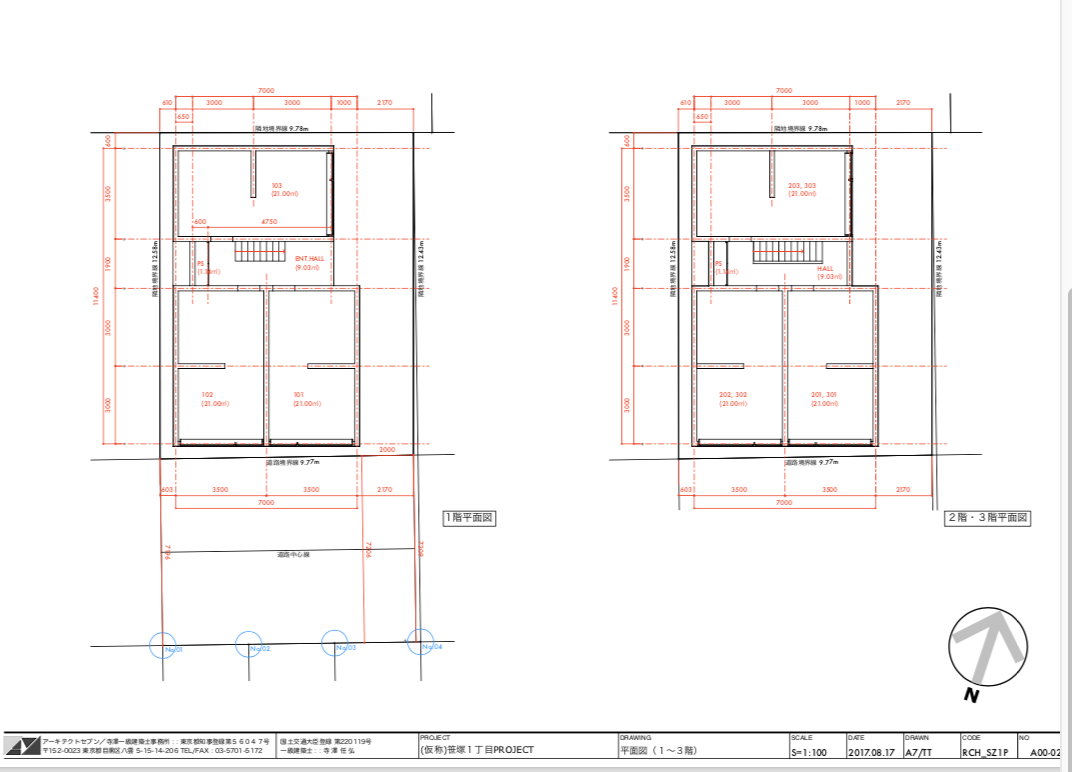
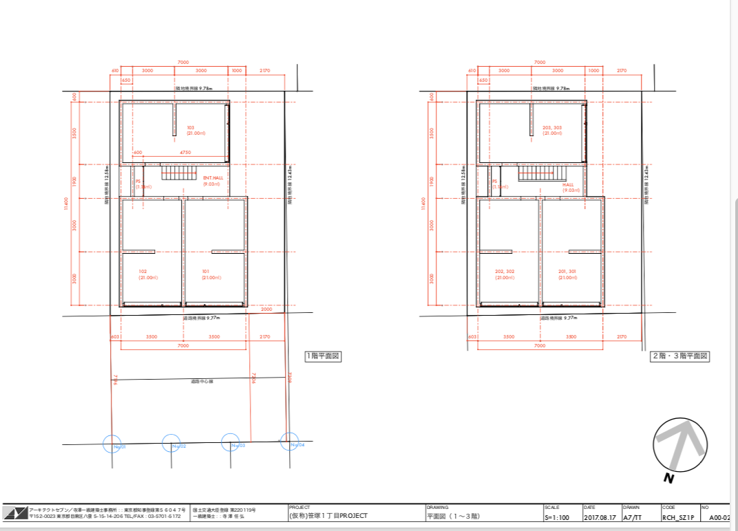
SZ1-PRJ
用途:ワンルームマンション
依頼:RC HAUS
高度斜線チェック, 道路斜線の天空率チェックによるボリュームをベースとした基本設計を SketchUp により modeling, LayOut でドキュメント作成



ZPJ-PRJ
用途:住宅
協働:マツモトアンドアソシエイツ
住宅の設計・デザイン提案。SketchUp によりボリューム検討、プランニング、モデル作成、LayOut により一般図(配置図、平面図、立面図、断面図)プレゼンテーション資料作成。






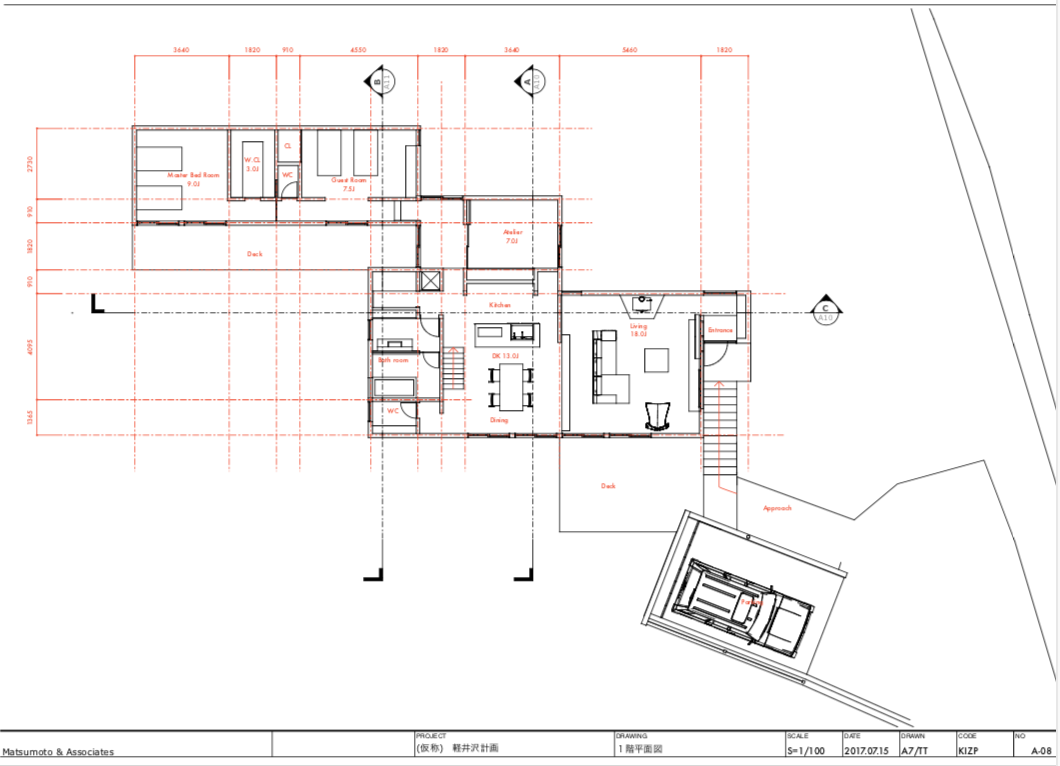
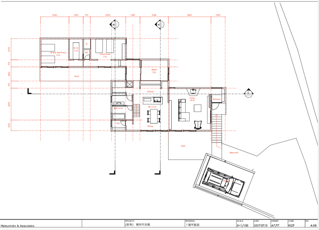
KIZ-PRJ
用途:住宅
協働:マツモトアンドアソシエイツ
別荘地の住宅の設計・デザイン提案。SketchUp により敷地レベルから地形作成、レベル差をふまえたボリューム検討、プランニング、モデル作成、LayOut により一般図(配置図、平面図、立面図、断面図)プレゼンテーション資料作成、Lumion によるレンダリング、オーナープレゼンテーション。



NFC-PRJ Phase-III
増築案の検討
用途:こども園
依頼:マツモトアンドアソシエイツ
+(株)ナレッジ・デザイン一級建築士事務所
竣工したこども園の屋上部分の増築計画の検討. SketchUp により打合せを進めながらリアルタイムモデリングにより方針検討. 2案提案, SketchUp モデルデータを LayOut により図面化, プレゼンテーション資料作成.












NKT-PRJ 天空率チェック・確認申請
用途:シェアハウス
依頼:アトリエ・ノブリル
地下室のある木造2階建シェアハウス. 2方向道路斜線の天空率によるボリュームチェック, クリア可能な屋根形状のデザイン提案, 確認申請提出書類の作成.



SketchUp Plugin
SUbD の日本語化
Thomas Thomassen による SketchUp 専用プラグイン SUbD v.2 のダイアログの日本語訳を担当
SUbD (Parametric Subdivisions) for SketchUp



YTK-PRJ 天空率チェック
用途:住宅
依頼:アトリエ・ノブリル
ルーフデッキのある木造3階建住宅. 2方向道路斜線の天空率によるボリュームチェック、プランニングをふまえてクリア可能な建物形状の提案



Lumion Forum 2017 春
2017/04/25:東京
2017/04/28:大阪
講演:SketchUp + FormIt + Revit
依頼: LivingCG
SketchUp (Component) データを FormIt に取り込みグループとして属性を付加すると Revit に Family として取り込み可能となる事例の紹介
新潟駅舎駅前広場整備
高架下交通広場基本設計業務
用途:交通広場
依頼:新潟駅周辺施設計画堀越共同体
(堀越英嗣ARCHITECT5・アプル総合計画事務所・
パシフィックコンサルタンツ・鳳コンサルタント)
新潟駅高架下交通広場基本設計業務における SketchUp による基本設計モデリング



SG3-PRJ
用途:トイレ改装
依頼:ライト工業(株)
学校のトイレの改装
THGC 耐震改装リニューアル計画
デザイン監修業務(基本設計)
用途:クラブハウス
依頼:堀越英嗣アーキテクトファイブ
協働:東急電鉄, 松鹿デザイン, 鞍谷万樹デザインオフィス
クラブハウスの耐震改修にともなう内装リニューアル計画. 基本設計のデザイン監修業務で SketchUp によるモデリングを担当.
Lumion 意見交換会 2017
2017/02/24:東京
2017/02/28:大阪
講演:CADMAPPER, PlaceMaker について
依頼: LivingCG
OpenStreetMap をベースとした CADMAPPER の紹介と、日本語訳を担当して2月にリリースされた SketchUp 用プラグインの PlaceMaker の紹介
CADMAPPER
PlaceMaker for SketchUp





SketchUp Plugin
PlaceMaker の日本語化
依頼: mindsight studio
OpenStreetMap を読み込んで道路・建物を自動的にモデリングする SketchUp 専用プラグインの日本語訳を担当.
PlaceMaker for SketchUp























